Форум Приднестровья, форум ПМР

Форум Приднестровья, форум ПМР (http://forum-pmr.net/index.php)
-   Недвижимость, квартиры и дома в ПМР (http://forum-pmr.net/forumdisplay.php?f=22)
-   -   Продам 2к квартиру, К.Либкнехта, центр (http://forum-pmr.net/showthread.php?t=111355)

amadois 03.09.2013 12:34

Продам 2к квартиру, К.Либкнехта, центр
 
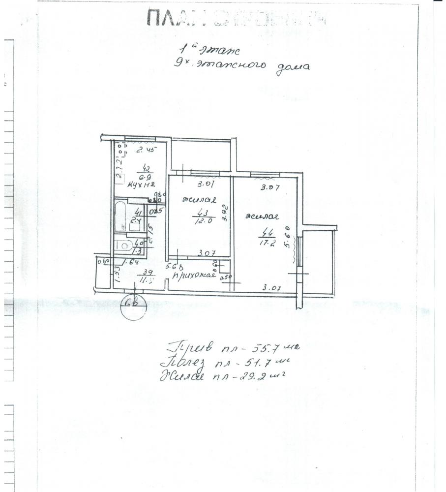
Продаю свою квартиру по ул. Карла Либкнехта, центр, рядом завод Квинт, милиция, почта, Дом Советов.
Общая -55,7 м2
Полезная-51,7 м2
Жилая - 29,2 м2
Имеются 2 застекленные лоджии,которые не учитываются в общем метраже.
Цена 33 к$. Форумчанам скидка.
http://forum-pmr.net/picture.php?alb...&pictureid=485
http://forum-pmr.net/picture.php?alb...&pictureid=486

МатвейПутилов 30.10.2013 10:12

Re: Продам 2к квартиру, К.Либкнехта, центр
 
Лучше частного дома нет ни чего...

amadois 09.11.2013 04:18

Re: Продам 2к квартиру, К.Либкнехта, центр
 
Разве что частный дом у океана

amadois 19.03.2014 11:23

Re: Продам 2к квартиру, К.Либкнехта, центр
 
ПРОДАНА:br:

PMR 19.03.2014 23:30

Re: Продам 2к квартиру, К.Либкнехта, центр
 
Видимо из-за ситуации на Украине люди деньги вкладывают в недвижимость.

amadois 22.03.2014 12:52

Re: Продам 2к квартиру, К.Либкнехта, центр
 
Цитата:

PMR писал (а) (Сообщение 255084)
Видимо из-за ситуации на Украине люди деньги вкладывают в недвижимость.

Украина не причем, люди искали именно в этим доме квартиру для семейного проживания в одном дворе. А вообще спрос на недвижимость в Тирасполе очень низкий.


Текущее время: 20:58. Часовой пояс GMT +2.

Powered by vBulletin® Version 3.8.7
Copyright ©2000 - 2025, Jelsoft Enterprises Ltd. Перевод: zCarot